The long-empty lot on Marietta Square known locally as the “Goldstein Gap” is finally set for new life. On September 29, 2025, the Marietta Historic Board of Review unanimously approved plans for a new Ted’s Montana Grill at 77 North Park Square. The property has remained vacant since owner Philip Goldstein razed the Cuthbertson building in 2010. Since then, multiple redevelopment proposals fell through, including plans for a brewery and a five-story building.

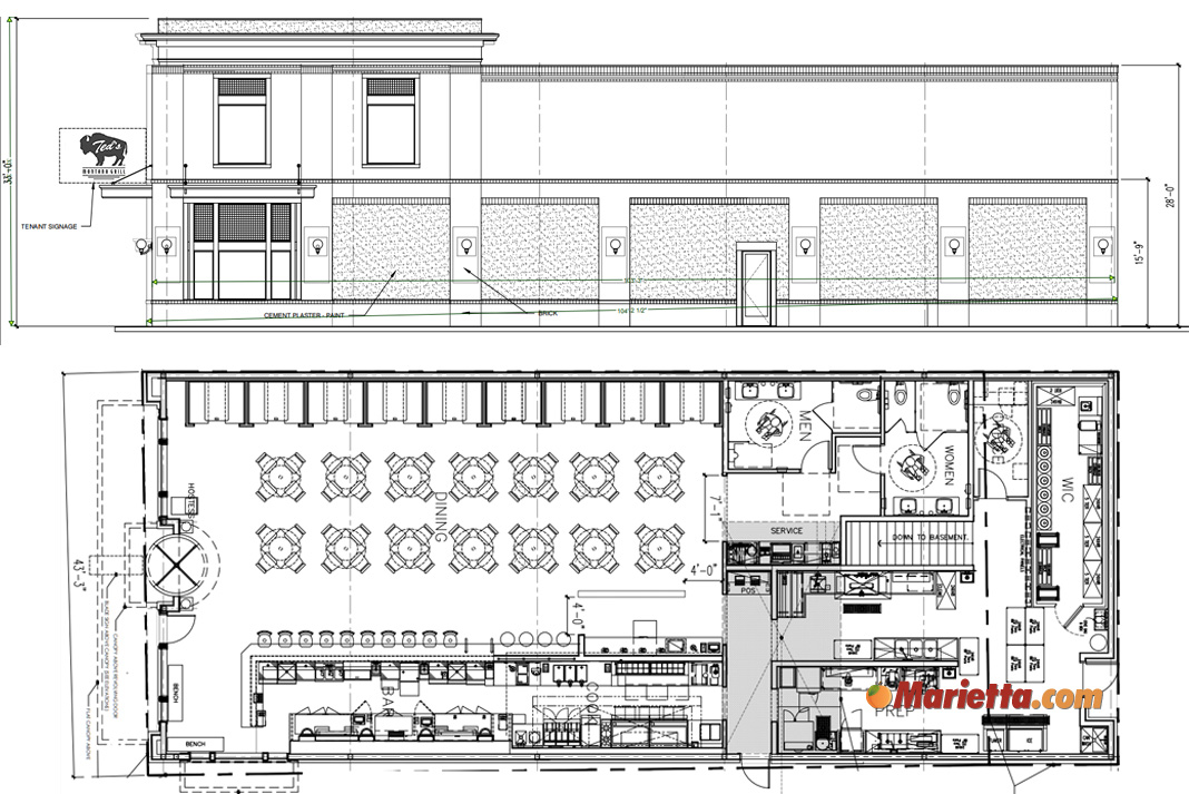
The approved project will be a single-story, steel-framed structure totaling 4,311 square feet, including a partial basement of 315 square feet on the 4,423-square-foot site. To maintain the visual rhythm of the Square, the design incorporates a second-story fascia that matches the scale of neighboring buildings.

The exterior will feature brick veneer with cement plaster and precast accents such as belt courses, a water table, and soldier coursing. Architectural touches include a projecting cornice, flat metal canopies supported by pipe rods, and aluminum windows designed to resemble steel windows. Inside, details will echo historical elements with historical lines, patterned glass, transoms, and authentic mahogany trim and paneling. Construction is expected to be completed by June 2027.

Ted’s Montana Grill was founded in 2002 by media entrepreneur Ted Turner and George W. McKerrow, the founder of LongHorn Steakhouse. The restaurant is inspired by 19th-century saloons, offering a relaxed setting for enjoying hearty meals with a nod to American heritage. The concept grew rapidly, at one time peaking at 55 units nationwide. Today there are 27 locations across the U.S., with Georgia leading the way at 11, and soon to be 12 when the Marietta Square location opens.

Known for its eco-friendly approach and warm hospitality, Ted’s Montana Grill has become synonymous with bison on the menu. In fact, it serves more bison than any other restaurant group in the world. Guests can expect flavorful bison burgers and hand-cut steaks, along with other American classics, all complemented by the restaurant’s sustainability practices like paper straws, Boraxo soap, and small-batch cooking to minimize food waste.

The cornerstone of Ted’s Montana Grill is bison, praised for both its nutrition and taste. Bison meat is naturally lean, higher in iron and protein than other proteins, and free from hormones or steroids. Flavor-wise, it’s tender, mildly sweet, and never gamey, making it ideal for everything from juicy burgers to hearty steaks.

Alongside bison, Ted’s emphasizes locally sourced produce and antibiotic-free chicken. With a food waste percentage of only 1.62 percent compared to the industry average of 3 to 4 percent, the restaurant continues to push forward with environmentally conscious operations.
Marietta residents may already be familiar with Ted’s Montana Grill through its three other area restaurants: Barrett Pavilion in Kennesaw, Parkaire Landing in East Cobb, and The Avenue West Cobb. The upcoming Marietta Square location will add to that footprint, giving locals yet another chance to enjoy Big Sky-inspired dining without leaving the county.
Address:
Ted’s Montana Grill (Coming in late 2027)
77 North Park Square
Marietta, GA 30060
The Marietta Historic Board of Review is the body that protects and regulates development within the Downtown Marietta Historic District, ensuring new construction, renovations, and other exterior changes are visually compatible with historic buildings and structures. The Board issues certificates of approval for exterior changes, issues guidelines for things like public art, and has the authority to approve the preservation, relocation, or demolition of historic structures.
















